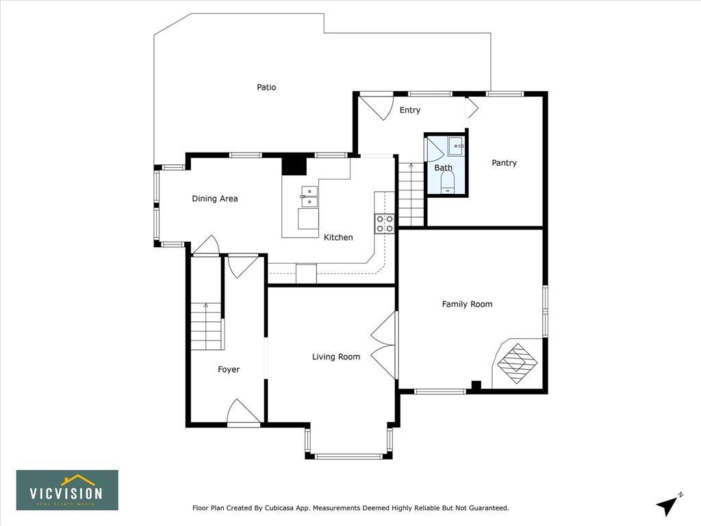
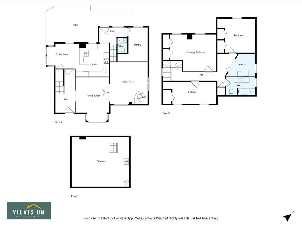
Offers presented as received. West House is not a Registered Heritage home. Welcome to this beautiful Queen Anne-style home that perfectly combines classic charm with modern updates. Nestled in a friendly neighborhood, this house is a true gem waiting for you to call it home. This home was built for Captain Charles H West by Robert Moncrieff and Frank Wright in 1888. There are so many gorgeous touches that have been added to this home, including a number of stained glass windows and a Vermont Castings fireplace. While the wood trim and staircase are original, tasteful updates have been made, including the kitchen, laundry room floor, and bathroom floor redone with vinyl ('25). Updates to the home include updated plumbing('24), hot water tank('22), shingles ('25), AC/Heat Pump ('25), dishwasher ('25), dryer ('25), and 200 amp service. Outside, you will find a low-maintenance 22 x 35 ft. detached garage(built in '19) with 10 ft. ceilings, single side door, metal roof and siding, with a stone brick parking pad. Don't forget your large fenced yard, which is perfect for entertaining, your children to run around in, or your pets! Minutes to all amenities. This property is a must-see!
Book A Viewing or ask a question
ABOUT THIS Community
Real Estate Statistics
The total units of single family detached homes sold in

















































