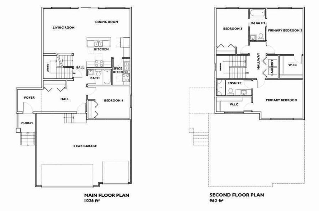
Showhome is open Saturday's & Sunday's 1-4 at 3 Maple Drive. To be built. Welcome to 27 Stony Lane in Mountain Ridge Park! This stunning Signature Homes build is the home you ve been waiting for! As you step inside, you ll be welcomed by a spacious foyer that leads into a beautifully designed open-concept living space. The large great room, dining area, and stylish kitchen complete with a spice kitchen and quartz countertops offer the perfect setting for entertaining family and friends. This home features 4 bedrooms, including one on the main floor, and 3 full bathrooms. Upstairs, you ll love the convenience of two primary bedrooms and a second-floor laundry room, making everyday living effortless. Designed for both style and function, the home boasts SPC flooring throughout the main floor, bathrooms, and laundry, along with soaring 9-foot ceilings for a spacious feel. The exterior is just as impressive, featuring stone accents on both sides of the triple garage offering all the space you need for vehicles, storage, and toys. Don t miss your chance to make this incredible home yours book your consultation today!
Book A Viewing or ask a question
ABOUT THIS Community
Real Estate Statistics
The total units of single family detached homes sold in








